analytics

Attractive Investment Package

Surrounded by nature with a number of parks and playgrounds, while being close to retail and entertainment precincts, this two stage project with 55 units, is an attractive investment opportunity.  This friendly and inviting community provides an immediate break from the hustle and bustle of city living, without having to sacrifice on location or lifestyle choices. 

Inside you’ll find a spacious tropical oasis, complete with pool, greenspaces plus sheltered seating and BBQ area.  Adjacent to the complex, residents will discover the 2.2 hectares of parklands with integrated kids playground.

Turn-key and trouble free this well-appointed townhome comes complete with all the finishes and fixtures residents have come to expect, making it both a beautiful home and a great investment property. 

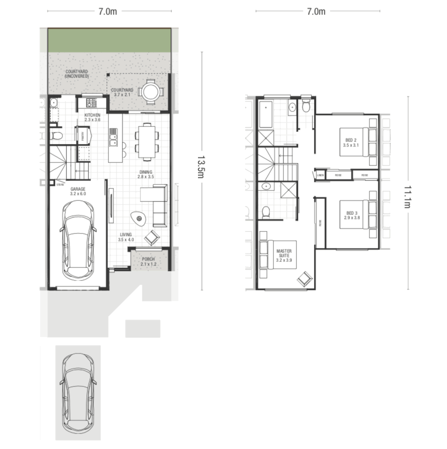
Two levels by design, upstairs are 3 spacious bedrooms, the master suite comes complete with ensuite and bedrooms 2 and 3 share the main bathroom including a bath.  Downstairs the open plan kitchen, living and dining spaces open up to the alfresco area – perfect for a summer night’s BBQ or entertaining indoors during the cooler months.

Designed to maximse space and prove a true rentability experience for our residents, this townhome comes with quality stainless steel appliances, durable and stylish stone benchtops, energy efficient electrical items, air conditioning and easy to care for landscaping.  Know that you are investing in a quality product that will withstand the rest of time, is effortlessly stylish and won’t date against the trends of tomorrow.

LOCATION

Thornlands is located within Redland Bay area, within convenient proximity to the Gold Coast, Brisbane City and Logan: 

  • 35km to Brisbane CBD
  • 1 hour drive to Gold Coast
  • 50 mins drive to Logan 

A short trip north and you're in the heart of bustling Cleveland precinct.  Travel east to enjoy some light entertainment in Victoria Point, or a quick journey south to enjoy the relaxed bayside lifestyle in Redland Bay.

AMENITIES

Victoria Point Shopping Centre is the perfect drop-in destination for all the daily and weekly essentials. Located a short eight minutes’ drive away, this major retail outlet has not only the major grocery stores, but a major hardware outlet, cinema complex, and a wide variety of general retail outlets and popular takeaway food outlets. There is even a local shop only one minute down the road, great for that last-minute milk or bread run or simply to enjoy a bit of ‘me time’ with a coffee. Trains and bus stops are also close by for the ultimate convenience.

You’ll have peace of mind knowing there’s medical centres only minutes away and with plenty of practices available, you’ll never be far away from doctors, dentists and specialists when you need them.

EDUCATION

A range of childcare facilities and education services are conveniently located within 5km.  Residents with young children will love the convenience of the brand-new community childcare centre located only a few minutes walk away – a real attraction for young parents.  For older children there is a range of leading private and public primary and secondary schools close by and all accessible via the bus stop located directly outside the complex.  TAFE Queensland campuses are also just 15 minutes drive away.

WHY INVEST IN THORNLANDS?

Growth Area

Between 2000 and 2017, Thornlands and adjacent Victoria Point's total population increased by an impressive 64%.   The growth achieved has significantly outpaced the general trend experienced throughout the broader Redland LGA and the neighboring Brisbane LGA, each of which experienced a lesser, 38% and 39% increase in population across the same period. Importantly as we look to the future, population growth within the Thornlands and Victoria Point area is expected to continue to outperform both Redland LGA and Brisbane LGA, increasing by an additional 33% between 2017 and 2036.  [Source: The National Property Research Co Report - November 2018]

Significant Infrastructure Investment

As well as offering a desirable, waterside location, Redland Bay will benefit greatly from several significant infrastructure development projects that are currently underway, or earmarked for development throughout the surrounding area. Local projects such as Weinam Creek Priority Development Area, and the proposed delivery of Paradise Garden and the $1.3 Billion Toondah Harbour development will greatly enhance the lifestyle offering of Redland Bay, through the delivery of an abundance of new retail, social and residential amenity. In addition, the neighbouring city of Brisbane is continuing its push towards becoming a truly ‘global city’, with a vast array of urban renewal and infrastructure development projects now taking place. Multi billion dollar projects like Queen's Wharf, Brisbane Live, Cross River Rail and the extensive upgrades planned for the Brisbane Domestic and International airport will dramatically enhance the city's reputation as a truly world class destination, creating new economic opportunities for generations to come. Collectively, thirteen of these projects represent a forecast investment of circa $18 Billion in the Queensland Economy, with close to 65,000 jobs expected to be created as a result of their delivery and future operation. [Source: The National Property Research Co Report - November 2018]

To find out more, please contact Kairos Agent - we'll help you find the solution that fits both your needs and budget.

 

 

Photographs and images are provided as a guide only.  The final product may differ to that depicted and is subject to planning approval and design changes.  Images may also include upgrade options.

The above information provided has been furnished to us by the vendor/builder/s. We have not verified the accuracy of the information and do not have any belief one way or the other in its accuracy. We do not accept any responsibility to any person or entity for its accuracy and do no more than pass it on. All interested parties should make and rely upon their own inquiries to determine the accuracy of this information.

 

3 2 2
Suburb Thornlands
Price $423,000
Property Type Residential
Property ID 185
Category Townhouse
Floor Area 144 m2

Quick Links

Agent Details

Debbie Weir photo

Debbie Weir

Director

0417 709 410
View Profile
Alan J Marshall photo

Alan J Marshall

CEO

0418 910 100
View Profile